EFH oder MFH, Mehrgenerationenhaus oder Wohnen und Arbeiten

23795 Mözen

Art-Icon Art: Haus
Zimmer-Icon Zimmer: 10
Badezimmer-Icon Badezimmer: 3
Wohnfläche ca.-Icon Wohnfläche ca. 250 m²
Grundstück ca.-Icon Grundstück ca. 1036 m²
Preis-Icon Kaufpreis: 469.000,00 EUR

Energieausweis

0 50 100 150 200 250 300 350 400 +

Endenergiebedarf: 116,37 kWh/(m²·a)

Was Sie über dieses Objekt wissen sollten

  • 7552
  • Haus
  • 1970
  • 10
  • 3
  • 3
  • 250 m²
  • 1036 m
  • 6
  • Öl
  • Ja

Objektbeschreibung

EFH oder MFH , Mehrgenerationen oder Wohnen und Arbeiten


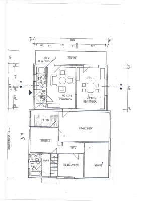
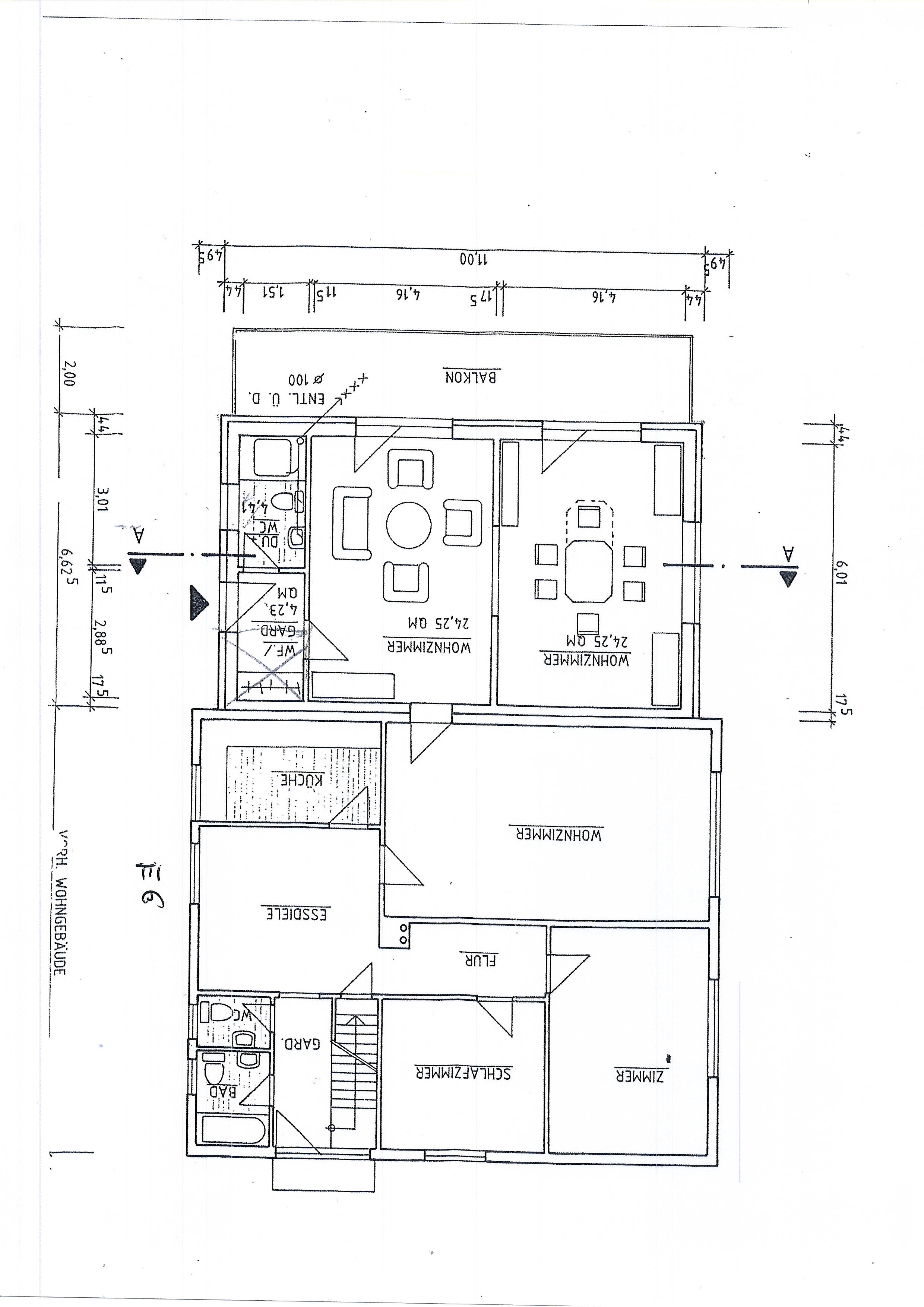
Dieses in Massivbauweise errichtete Haus ist mit seiner Größe und Aufteilung für eine vielfältige Nutzung geeignet.
Eine große Familie, auch mit mehreren Generationen unter einem Dach, oder Wohnen und Arbeiten haben hier viel Platz. 2 Hauseingänge im Erdgeschoß ermöglichen auch die Aufteilung in bis zu 3 Wohneinheiten mit separaten Eingängen und auch Bädern.
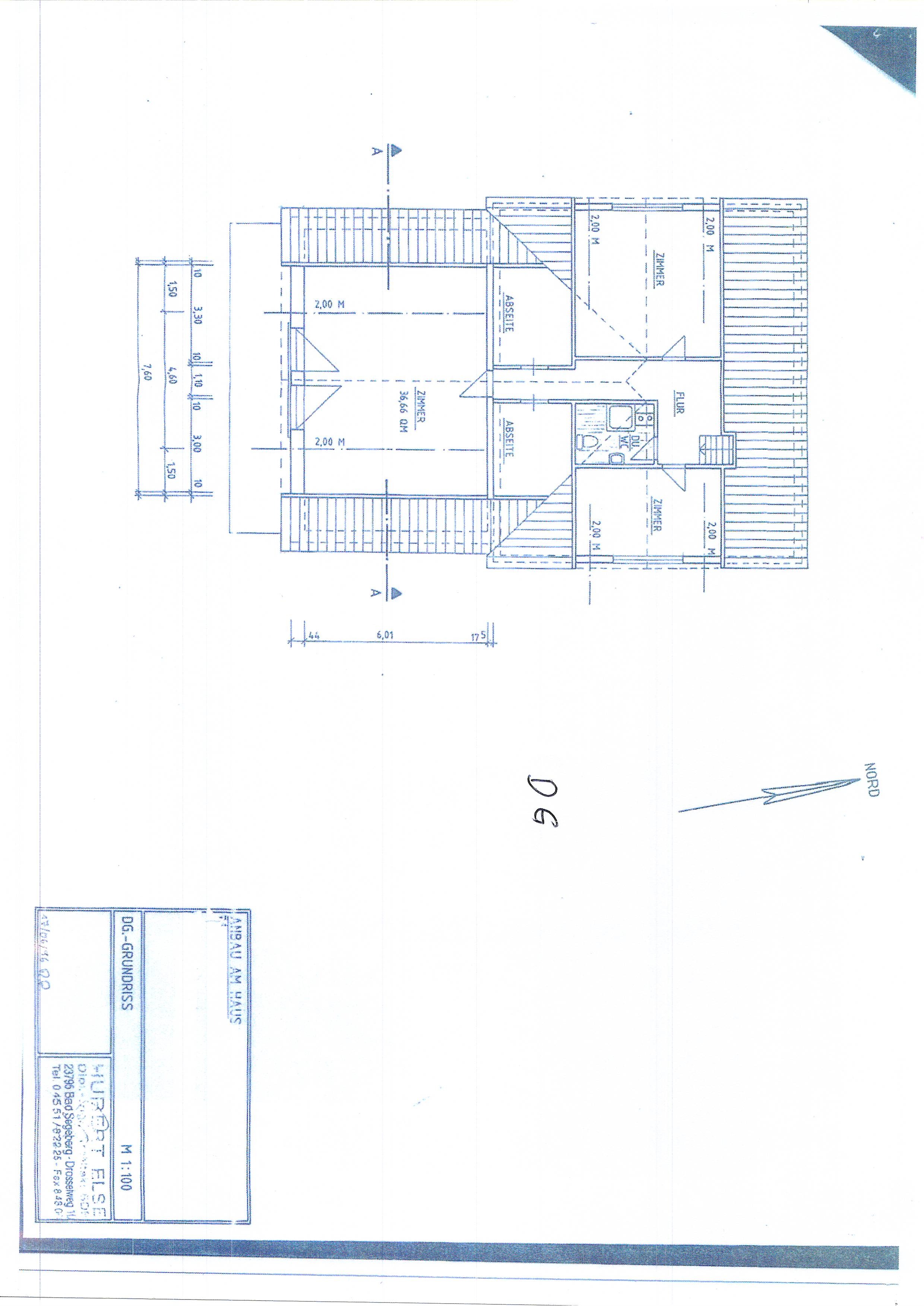
1970 als Einfamilienhaus erbaut, wurde das Objekt 1997 durch einen großen Anbau über alle 3 Etagen erweitert und aufgewertet. Das Dach und die Heizung wurden hierbei komplett erneuert.
Die Ölzentralheizung und der Kaminofen sorgen für wohlige Wärme im ganzen Haus.
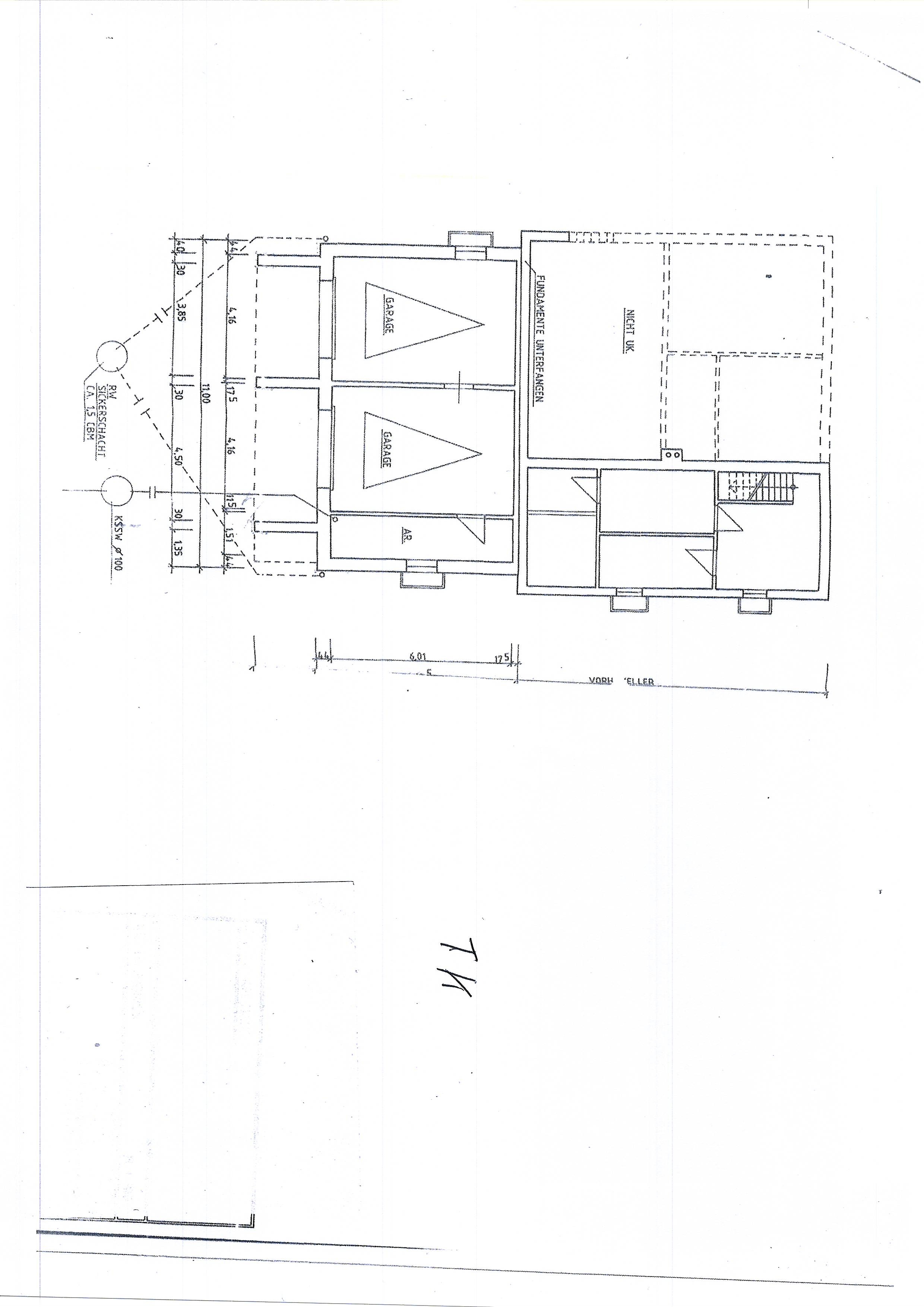
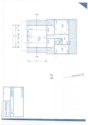
Der Keller unter dem alten Gebäudeteil hat Platz für die Heizung, das Öllager und einen Vorratsraum. Im Anbau befinden sich im Kellergeschoß 2 Garagen und ein Waschraum. 2 weitere Garagen befinden sich auf dem nördlichen Teil des Grundstücks.
Die Lage nahe des Mözener Sees (ca. 5 Minuten zu Fuß) und das pflegeleichte Grundstück laden zum Verweilen ein.

Ausstattung und Besonderheiten dieses Objektes

Lage und Umfeld dieser Immobilie

Courtage

3,57 % (inkl. % MwSt.)

je vom Käufer und Verkäufer nach dem notariellen Kaufvertrag zu zahlen an die Firma Erika Zech Immobilien.e.K. Zollweg 2a, 23611 Sereetz

Die richtige Immobilie war noch nicht dabei?

Wir senden Ihnen passende Angebote per E-Mail!

Kontaktieren Sie uns! Exposé drucken